Naše společnost OK ZAHRADY s.r.o. neustále rozšiřuje portfolio poskytovaných služeb. Nově Vám nabízíme pronájem skladových, výrobních, kancelářských a bytových prostor v Novém Bydžově.
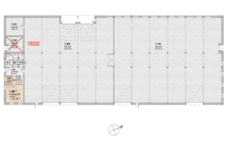
Cca 2 000 m2 skladových a cca 500 m2 kancelářských prostor včetně souvisejícího zázemí (sociální zařízení, kuchyňky, školící místnost …).
Moderní budova (objekt A), která je v přízemí vhodná pro lehkou výrobu s prostorem pro showroom. V patře školící místnost, kanceláře, sociální zařízení a kuchyňka.
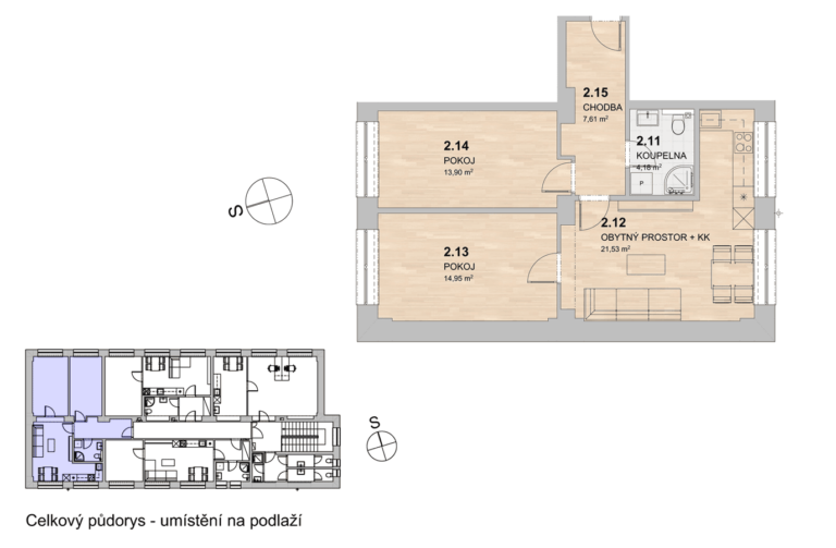
Skladové a kancelářské a bytové prostory v nově zrekonstruovaných budovách (objekt D a objekt E ).
Energeticky úsporné budovy.
LED osvětlení, vytápění novými plynovými agregáty nebo tepelnými čerpadly, kompletní zateplení budov.
Objekty jsou vybavené kamerovým systém a internetovým připojením.
K objektům lze pronajmout i parkovací nebo zpevněné plochy za poplatek.
Prostory k pronájmu je možné rozdělit dle požadavků zájemce.
V ceně nájmu nejsou zahrnuty zálohy na energie.
Pronajímané nemovitosti se nacházejí ve společném areálu s naší společností v Novém Bydžově ul. Jos. Jungmanna 1735. Jsou součástí oploceného a uzamykatelného areálu, který je dobře přístupný nejen pro kamionovou dopravu. Areál je monitorován kamerovým systémem.
Ke všem pronajímaným objektům nabízíme službu dopravy, nakládky a vykládky uskladněného zboží. Tuto službu zajišťují naši zaměstnanci.