
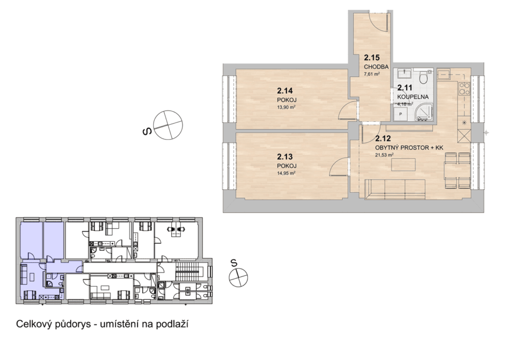
| 2.11 | koupelna | 4,32 m² |
| 2.12 | obytný prostor + KK | 21,53 m² |
| 2.13 | pokoj | 14,95 m² |
| 2.14 | pokoj | 13,90 m² |
| 2.15 | chodba | 7,61 m2 |
| E4 – byt | 62,31 m² |
Lokalita
Pronajímané objekty se nachází v klidné části města Nový Bydžov, v ulici Jos. Jugmanna 1735, v areálu firmy OK ZAHRADY s.r.o.
Cca 25 km od krajského města Hradec Králové.
Dobrá přístupnost pro kamionovou dopravu.
Nájezd na dálnici D11 (Praha – Hradec Králové) je ve vzdálenosti 14 km.
Cca 10 minut chůzí od vlakového a autobusového nádraží.
★★★★★
K pronájmu nabízíme skladové a kancelářské prostory v nově zrekonstruované budově.
cena pronájmu
13 460 Kč
bez DPH/měsíc







