
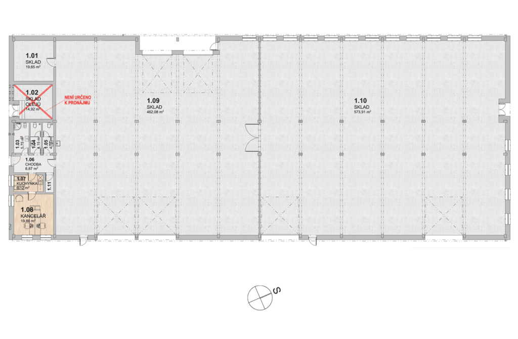
| D Budova se sklady a zázemím | 1 106 m² | z toho sklad 1 056 m² |
Lokalita
Pronajímané objekty se nachází v klidné části města Nový Bydžov, v ulici Jos. Jugmanna 1735, v areálu firmy OK ZAHRADY s.r.o.
Cca 25 km od krajského města Hradec Králové.
Dobrá přístupnost pro kamionovou dopravu.
Nájezd na dálnici D11 (Praha – Hradec Králové) je ve vzdálenosti 14 km.
Cca 10 minut chůzí od vlakového a autobusového nádraží.
★★★★★
K pronájmu nabízíme skladové a kancelářské prostory v nově zrekonstruované budově.
cena pronájmu
PRONAJATO







